Кузов-фургон представляет собой конструкцию из пятислойных «сэндвич-панелей». Снаружи и изнутри фургон обшит стальным оцинкованным листом с полимерным лакокрасочным покрытием («плакированный лист»). Пространство между внешней и внутренней обшивкой фургона заполнено слоем теплоизоляционного материала пенополистирол марки «Стиропен 50» имеющего низкую теплопроводность и низкую горючесть. Для усиления конструкции между утеплителем и обшивкой находятся слой фанеры. Изнутри фургона пол покрыт автомобильным линолеумом на резиновой основе («автолин»). Фургон в исполнении без боковых скосов. Наружная обшивка - плакированный металл белого цвета (RAL 9003) и внутренняя обшивка - плакированный металл белого цвета (RAL 9003). Обрамление фургона: наружное – алюминиевый профиль, внутреннее – алюминиевый профиль. Дверные проемы (порталы) из нержавеющей стали.
Агрегат ремонтно-сварочный (АРС) с генератором Doosan КамАЗ 43118-50
Агрегат ремонтно-сварочный (АРС) с генератором Doosan КамАЗ 43118-50
Код: 40-127Описание
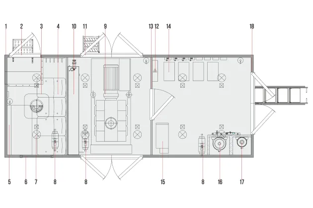
Схема
1. Кузов-фургон
2. Дверь входная с окном
3. Люк аварийно-вентиляционный
4. Сиденья сертифицированные с ремнями безопасности -4 шт
5. Стол складной
6. Окно с форточкой
7. Плфоны освещения 24/220В
8. Автономный дизельный отопитель «Планар-4Д» - 3 шт.
9. Дизель генератор ADDo «Doosan» 100 кВт (двигатель Doosan D1146T)
10. Дополнительный топливный бак 500л.
11. Дверь в технологический отсек - 2 шт
12. Электрошкаф
13. Дверь в рабочий отсек
14. Место для размещения свароных аппаратов
15. Печь для прокалки электродов
16. Отсек под пропанновый баллон
17. Отсек под кислородный баллон
18. Дверь задняя двухствочатая
Характеристики
Шасси
| Бренд | КАМАЗ |
|---|---|
| Модель | 43118-3027-50 |
| Колесная формула | 6х6 |
| Внешний габаритный радиус поворота, м | 12,3 |
| Максимальная скорость, км/ч | 90 |
| Угол преодолеваемого подъема, не менее, % | 60 |
Двигатель
| Модель | 740.705-300 |
|---|---|
| Тип | Дизельный |
| Экологический класс | Евро-5 |
| Количество цилиндров | 8 |
| Рабочий объем, л | 11,76 |
| Расположение цилиндров | V-образное |
| Максимальный полезный крутящий момент, Нм (кгсм) | 1275 (128) |
| Требуемая частота вращения коленчатого вала для достижения максимального крутящего момента (об/мин) | 1300 |
| Максимальная полезная мощность, кВт (л.с.) | 221 (300) |
| Требуемая частота вращения коленчатого вала для достижения максимальной мощности (об/мин) | 1900 |
Колеса и шины
| Размер обода | 10.00-20 или 12.2-20,9 (в зависимости от комплектации) |
|---|---|
| Тип колес | Дисковые |
| Тип шин | Пневматические, с регулированием давления |
| Размер шин | 390/95 R20 или 425/85 R21 (в зависимости от комплектации) |
| Ошиновка | Односкатная |
Тормозная система
| Привод | Пневматический |
|---|---|
| Диаметр барабана, мм | 400 |
| Ширина тормозных накладок, мм | 140 |
Коробка передач
| Модель | 154 |
|---|---|
| Тип | Механическая, 10-ступенчатая |
| Управление | Механическое, дистанционное |
| Передаточные числа на передачах | 1H-7,82; 1B-6,38/ 2H-4,03; 2B-3,29/ 3H-2,5; 3B-2,04/ 4H-1,53; 4B-1,25/ 5H-1; 5B-0,815/ 3ХH-7,38; 3ХВ-6,02 |
| Количество передач | 10 |
Сцепление
| Модель | Гидравлический с пневмоусилителем |
|---|---|
| Тип | Диафрагменное, однодисковое, мод. ZF&SACHS MFZ-430 |
Кабина
| Тип | Расположение над двигателем, рестайлинг, с высокой крышей |
|---|---|
| Спальное место | Без спального места |
Электрооборудование
| Аккумуляторы, В/А·ч | 2х12/190 |
|---|---|
| Генератор, В/Вт | 28/3000 |
| Напряжение, B | 24 |
Топливная система
| Вместимость топливного бака, л | 350+210 |
|---|
Главная передача
| Передаточное отношение | 6.53 |
|---|
Доставка
Доставка техники
Доставка производится по всей территории России и в страны Ближнего Зарубежья. Наша компания сотрудничает с ведущими транспортными компаниями, что позволяет предлагать клиентам оптимальные условия доставки.
Мы тщательно следим за процессом погрузки и осуществляем постоянный контроль за сохранностью груза на всем пути следования:
- Для клиента производится фото- и видео-съемка погрузки.
- Вся техника страхуется на период доставки.
Доставка по территории России осуществляется по тарифам транспортных компаний.
Доставка в страны СНГ осуществляется по индивидуальному договору и согласовывается непосредственно с менеджером, ведущим сделку.
Виды доставки:
- Автомобильный транспорт
- Речной транспорт
- Железнодорожный транспорт
В отдаленные регионы России осуществляется комбинированная доставка с учетом особенностей местности.
Сроки:
Сроки доставки оговариваются индивидуально и зависят от удаленности пункта назначения и логистических особенностей региона.
Оплата
Варианты оплаты:
- Безналичный расчёт: удобный и безопасный способ оплаты.
- Рассрочка: возможность разделить оплату на несколько этапов.
- Лизинг: выгодное финансирование с индивидуальным графиком платежей.
Как оформить оплату?
- Свяжитесь с нашим менеджером для уточнения всех деталей.
- Выберите удобный способ оплаты.
- Подтвердите условия и завершите сделку.
Мы всегда готовы обсудить индивидуальные условия и найти подходящий вариант для вашего бизнеса. Свяжитесь с нами, чтобы узнать подробности!
Услуги
Изготовление вахтовых автобусов под ключ для тяжелых условий
Изготовление бортовых автомобилей под ключ для перевозки тяжелых грузов
Изготовление изотермических фургонов под ключ с холодильной установкой
Изготовление агрегатов ремонта АРОК под ключ для обслуживания качалок
Изготовление агрегатов АНРВ под ключ для ремонта водоводов
Обсудить сотрудничество или нужна консультация?
Заполните форму и наш менеджер свяжется с вами в течении 15 минут (в рабочее время)