Кузов-фургон представляет собой конструкцию из пятислойных «сэндвич-панелей». Снаружи и изнутри фургон обшит стальным оцинкованным листом с полимерным лакокрасочным покрытием («плакированный лист»). Пространство между внешней и внутренней обшивкой фургона заполнено слоем теплоизоляционного материала пенополистирол, имеющего низкую теплопроводность и низкую горючесть. Для усиления конструкции между утеплителем и обшивкой находятся слой фанеры. Изнутри фургона пол покрыт автомобильным линолеумом на резиновой основе («автолин»). Фургон в исполнении без боковых скосов. Наружная обшивка - плакированный металл белого цвета (RAL 9003) и внутренняя обшивка - плакированный металл белого цвета (RAL 9003). Обрамление фургона: наружное – алюминиевый профиль, внутреннее – алюминиевый профиль. Дверные проемы (порталы) из нержавеющей стали.
Агрегат ремонтно-сварочный (АРС) КамАЗ 43118-3027-50
Агрегат ремонтно-сварочный (АРС) КамАЗ 43118-3027-50
Код: 40-125Описание
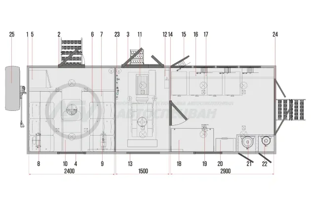
Схема
1. Кузов-фургон
2. Дверь входная с окном в жилой отсек
3. Дверь входная 2х-створчатая
4. Окно стеклопакет с форточкой 2 шт
5. Шкаф для одежды
6. сиденья сертифицированные - 6 шт.
7. Верхние полки (2 стационарные, 2 съемные)
8. Отопитель от системы ДВС
9. Автономный дизельный отопитель «Планар-4Д»
10. Стол
11. Место под ДЭС
12. Электрошкаф
13. Люк вентиляционный
14. Дверь межотсечная
15. Катушка под сварочный кабель
16. Сварочный выпрямитель 4 шт
17. Стол металлический
18. Верстак с ящиками
19. Тисы слесарные
20. Печь для прокалки электродов
21. Ниша под кислородный баллон
22. Ниш под пропановый баллон
23. Шанцевый инструмент
24. Дверь задняя 2х створчатая
25. ДЗК за кабиной
Характеристики
Шасси
| Бренд | КАМАЗ |
|---|---|
| Модель | 43118-3027-50 |
| Колесная формула | 6х6 |
| Внешний габаритный радиус поворота, м | 12,3 |
| Максимальная скорость, км/ч | 90 |
Двигатель
| Модель | 740.705-300 |
|---|---|
| Тип | Дизельный с турбонаддувом |
| Количество цилиндров | 8 |
| Рабочий объем, л | 11,76 |
| Степень сжатия | 18,0 |
| Расположение цилиндров | V-образное |
| Максимальный полезный крутящий момент, Нм (кгсм) | 1275 (128) |
| Требуемая частота вращения коленчатого вала для достижения максимального крутящего момента (об/мин) | 1300 |
| Максимальная полезная мощность, кВт (л.с.) | 221 (300) |
| Требуемая частота вращения коленчатого вала для достижения максимальной мощности (об/мин) | 1900 |
Колеса и шины
| Размер обода | 10.00-20 или 12.2-20,9 (в зависимости от комплектации) |
|---|---|
| Тип колес | Дисковые |
| Тип шин | Пневматические, с регулированием давления |
| Размер шин | 425/85R21 или 390/95R20 (в зависимости от комплектации) |
Тормозная система
| Привод | Пневматический |
|---|---|
| Диаметр барабана, мм | 400 |
| Ширина тормозных накладок, мм | 140 |
Коробка передач
| Модель | 154 |
|---|---|
| Тип | Механическая, 10-ступенчатая |
| Управление | Механическое, дистанционное |
| Передаточные числа на передачах | 7,82 – 0,815 |
Раздаточная коробка
| Тип | Механическая, 2-х ступенчатая, с блокировкой межосевого дифференциала |
|---|---|
| Управление | Пневматическое |
Сцепление
| Модель | MFZ 430 |
|---|---|
| Тип | Диафрагменное, однодисковое |
| Привод | Гидравлический с пневмоусилителем |
Кабина
| Тип | Расположенная над двигателем, рестайлинговая |
|---|---|
| Спальное место | Отсутствует |
Электрооборудование
| Аккумуляторы, В/А·ч | 2х12/190 |
|---|---|
| Генератор, В/Вт | 28/3000 |
| Напряжение, B | 24 |
Топливная система
| Вместимость топливного бака, л | 350+210 |
|---|
Главная передача
| Передаточное отношение | 6,53 |
|---|
Прочее
| Комплектация | МКБ, МОБ, ТНВД BOSCH, система нейтрализации ОГ(AdBlue), ДЗК, УВЭОС |
|---|
Доставка
Доставка техники
Доставка производится по всей территории России и в страны Ближнего Зарубежья. Наша компания сотрудничает с ведущими транспортными компаниями, что позволяет предлагать клиентам оптимальные условия доставки.
Мы тщательно следим за процессом погрузки и осуществляем постоянный контроль за сохранностью груза на всем пути следования:
- Для клиента производится фото- и видео-съемка погрузки.
- Вся техника страхуется на период доставки.
Доставка по территории России осуществляется по тарифам транспортных компаний.
Доставка в страны СНГ осуществляется по индивидуальному договору и согласовывается непосредственно с менеджером, ведущим сделку.
Виды доставки:
- Автомобильный транспорт
- Речной транспорт
- Железнодорожный транспорт
В отдаленные регионы России осуществляется комбинированная доставка с учетом особенностей местности.
Сроки:
Сроки доставки оговариваются индивидуально и зависят от удаленности пункта назначения и логистических особенностей региона.
Оплата
Варианты оплаты:
- Безналичный расчёт: удобный и безопасный способ оплаты.
- Рассрочка: возможность разделить оплату на несколько этапов.
- Лизинг: выгодное финансирование с индивидуальным графиком платежей.
Как оформить оплату?
- Свяжитесь с нашим менеджером для уточнения всех деталей.
- Выберите удобный способ оплаты.
- Подтвердите условия и завершите сделку.
Мы всегда готовы обсудить индивидуальные условия и найти подходящий вариант для вашего бизнеса. Свяжитесь с нами, чтобы узнать подробности!
Услуги
Изготовление вахтовых автобусов под ключ для тяжелых условий
Изготовление бортовых автомобилей под ключ для перевозки тяжелых грузов
Изготовление изотермических фургонов под ключ с холодильной установкой
Изготовление агрегатов ремонта АРОК под ключ для обслуживания качалок
Изготовление агрегатов АНРВ под ключ для ремонта водоводов
Обсудить сотрудничество или нужна консультация?
Заполните форму и наш менеджер свяжется с вами в течении 15 минут (в рабочее время)