Кузов-фургон представляет собой конструкцию из пятислойных «сэндвич-панелей». Снаружи и изнутри фургон обшит стальным оцинкованным листом с полимерным лакокрасочным покрытием («плакированный лист»). Пространство между внешней и внутренней обшивкой фургона заполнено слоем теплоизоляционного материала (пенополистирол), имеющего низкую теплопроводность и низкую горючесть. Для усиления конструкции между утеплителем и обшивкой находятся слой фанеры. Изнутри фургона пол покрыт автомобильным линолеумом на резиновой основе («автолин»). Фургон в исполнении без боковых скосов. Наружная обшивка - плакированный металл белого цвета (RAL 9003) и внутренняя обшивка - плакированный металл белого цвета (RAL 9003).
Обрамление фургона: наружное – алюминиевый профиль, внутреннее – алюминиевый профиль. Дверные проемы (порталы) из нержавеющей стали.
Вахтовый автобус Iveco EuroCargo MLC210E28W, 26 мест
Вахтовый автобус Iveco EuroCargo MLC210E28W, 26 мест
Код: 55-311Описание
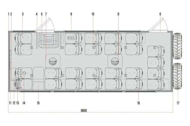
Схема
1. Кузов-фургон
2. Телевизор (с системой 5.1)
3. Сиденье пассажирское сдвоенное со ступенчатым механизмом наклона спинки и с механизмом сдвижки крайнего сиденья в проход, с высокой спинкой, с одним подлокотником (со стороны прохода), 3-х точечными инерционными ремнями безопасности, модель МН-3000 - 13 шт.
4. Перегородка с поручнем (2 шт.)
5. Дверь входная боковая, с окном (двойной стеклопакет), с заниженным входом, с поручнем, с подсветкой, с ограничителем, с замком. Уплотнитель на алюминиевой основе со сменными лепестками из эластичной резины (1 шт.)
6. Дверь задняя боковая (аварийная), с окном (двойной стеклопакет), с подсветкой, с замком. Уплотнитель на алюминиевой основе со сменными лепестками из эластичной резины (1 шт.)
7. Кондиционер Webasto Compact Cooler 8 (8 кВт)
8. Люк аварийно-вентиляционный (1 шт.)
9. Окна (двойной стеклопакет) (из них 3 окна с форточкой) (1 комплект)
10. Плафоны местного освещения (24В) (1 комплект)
11. Переговорное устройство фургон/кабина (1 шт.)
12. Преобразователь напряжения
13. Отопитель от системы охлаждения ДВС
14. Автономный отопитель Планар 4Д (2 шт.)
15. Стол (1 шт.)
16. Вещевые полки
17. ДЗК (держатель запасного колеса) на задней панели с гидравлическим механизмом спуска-подъема (2 шт.)
Характеристики
Шасси
| Бренд | Iveco |
|---|---|
| Модель | EuroCargo MLC210E28W |
| Колесная формула | 6х6 |
| Минимальный дорожный просвет, мм | 392 |
| Габариты (Длина*ширина*высота), мм | 7647*2490*3104 |
| Колесная база, мм | 3600 |
| Задний свес, мм | 1935 |
Двигатель
| Модель | IVECO TECTOR - 6 F4AE3681E |
|---|---|
| Тип | Рядный, 6 циллиндров, 4-х тактный турбодизель прямого впрыска; узел впрыска Common Rail; турбодизель с жидкостным охлаждением |
| Экологический класс | Евро-5 |
| Рабочий объем, л | 5,88 |
| Максимальный полезный крутящий момент, Нм (кгсм) | 950 |
| Требуемая частота вращения коленчатого вала для достижения максимального крутящего момента (об/мин) | 1250-2100 |
| Максимальная полезная мощность, кВт (л.с.) | 205/279 |
| Требуемая частота вращения коленчатого вала для достижения максимальной мощности (об/мин) | 2050-2500 |
Колеса и шины
| Размер шин | 395/80R20 КАМА-430 |
|---|---|
| Ошиновка | Односкатная |
| Диски | Стальные |
Тормозная система
| Тип | Двухконтурная пневматическая система тормозов с ABS и электронным ограничителем тормозного усилия EBL |
|---|---|
| Передние тормоза | Дисковые |
| Задние тормоза | Барабанные+стояночный тормоз |
| Дополнительно | Контрольная лампа износа тормозных колодок |
Коробка передач
| Модель | ZF 6S1000 TO |
|---|---|
| Тип | Ручная, синхронизированная |
| Количество передач | 6+1 |
| Передаточное отношение мостов | 7,14 |
| Блокировка | Межосевая и межколесного дифференциала заднего моста |
Раздаточная коробка
| Тип | VG 750 с отключаемым передним мостом |
|---|
Сцепление
| Тип | Сухое однодисковое с диафрагменной пружиной с серво-усилителем |
|---|
Электрооборудование
| Аккумуляторы, В/А·ч | 190 |
|---|---|
| Генератор, В/Вт | 24/70 |
| Напряжение, B | 24 |
| Стартер, кВт | 4 |
| Выключатель массы | Механический |
Подвеска
| Передняя ось | Параболические (многолистовые) рессоры, со стабилизатором поперечной устойчивости и гидравлическими телескопическими амортизаторами |
|---|---|
| Задняя ось | Балансирная, с полуэллиптическими рессорами; балансиры соединены между собой стяжкой |
| Рулевое управление | Гидравлическое усиление, блокировка; руль регулируется по высоте и наклону |
Веса и нагрузки
| Грузоподъемность, кг | 13 160 |
|---|---|
| Полная масса автомобиля, кг | 21 000 |
| Снаряженная масса (min), кг | 7840 |
| Нагрузка на переднюю ось (max), кг | 5700 |
| Нагрузка на заднюю тележку (max), кг | 16 000 |
Оси
| Передняя | Ведущая, управляемая, с отключаемым передним мостом |
|---|---|
| Задняя | Ведущие неуправляемые |
| Рама | Лонжероны стальные "С" профиля, трубчатые поперечины |
Доставка
Доставка техники
Доставка производится по всей территории России и в страны Ближнего Зарубежья. Наша компания сотрудничает с ведущими транспортными компаниями, что позволяет предлагать клиентам оптимальные условия доставки.
Мы тщательно следим за процессом погрузки и осуществляем постоянный контроль за сохранностью груза на всем пути следования:
- Для клиента производится фото- и видео-съемка погрузки.
- Вся техника страхуется на период доставки.
Доставка по территории России осуществляется по тарифам транспортных компаний.
Доставка в страны СНГ осуществляется по индивидуальному договору и согласовывается непосредственно с менеджером, ведущим сделку.
Виды доставки:
- Автомобильный транспорт
- Речной транспорт
- Железнодорожный транспорт
В отдаленные регионы России осуществляется комбинированная доставка с учетом особенностей местности.
Сроки:
Сроки доставки оговариваются индивидуально и зависят от удаленности пункта назначения и логистических особенностей региона.
Оплата
Варианты оплаты:
- Безналичный расчёт: удобный и безопасный способ оплаты.
- Рассрочка: возможность разделить оплату на несколько этапов.
- Лизинг: выгодное финансирование с индивидуальным графиком платежей.
Как оформить оплату?
- Свяжитесь с нашим менеджером для уточнения всех деталей.
- Выберите удобный способ оплаты.
- Подтвердите условия и завершите сделку.
Мы всегда готовы обсудить индивидуальные условия и найти подходящий вариант для вашего бизнеса. Свяжитесь с нами, чтобы узнать подробности!
Услуги
Изготовление вахтовых автобусов под ключ для тяжелых условий
Изготовление бортовых автомобилей под ключ для перевозки тяжелых грузов
Изготовление изотермических фургонов под ключ с холодильной установкой
Изготовление агрегатов ремонта АРОК под ключ для обслуживания качалок
Изготовление агрегатов АНРВ под ключ для ремонта водоводов
Обсудить сотрудничество или нужна консультация?
Заполните форму и наш менеджер свяжется с вами в течении 15 минут (в рабочее время)