Производство и поставка автоспецтехники

ГПА Урал 4320-1912-60Е5 без КМУ

Начните вводить запрос

ГПА Урал 4320-1912-60Е5 без КМУ

Скачать PDF Распечатать
ГПА Урал 4320-1912-60Е5 без КМУ 0 ГПА Урал 4320-1912-60Е5 без КМУ 1 ГПА Урал 4320-1912-60Е5 без КМУ 2 ГПА Урал 4320-1912-60Е5 без КМУ 3
ГПА Урал 4320-1912-60Е5 без КМУ 0
ГПА Урал 4320-1912-60Е5 без КМУ 1
ГПА Урал 4320-1912-60Е5 без КМУ 2
ГПА Урал 4320-1912-60Е5 без КМУ 3
Под заказ
Собственное производство

ГПА Урал 4320-1912-60Е5 без КМУ

Код: 53-217
Скачать PDF Распечатать
Код: 53-217
Узнайте цену сейчас
Подробнее о лизинге
Роман Безнедельный

Роман Безнедельный

Менеджер по продажам

Гарантия на навесное 12 месяцев

Доставка по РФ и СНГ

Подробнее о доставке и оплате

Описание

Кузов-фургон АСВ7721 представляет собой конструкцию из пятислойных «сэндвич-панелей». Снаружи и изнутри  фургон обшит стальным оцинкованным листом с полимерным лакокрасочным покрытием («плакированный лист»). Пространство между внешней и внутренней обшивкой фургона заполнено слоем теплоизоляционного материала (пенополистирол), имеющего низкую теплопроводность и низкую горючесть. Для усиления конструкции между утеплителем и обшивкой находятся слой фанеры. Изнутри фургона пол покрыт автомобильным линолеумом на резиновой основе («автолин»). Фургон в исполнении с боковыми скосами. Наружная обшивка - плакированный металл белого цвета (RAL 9003) и внутренняя обшивка - плакированный металл белого (RAL 9003).
Обрамление фургона: наружное – алюминиевый профиль, внутреннее – алюминиевый профиль.

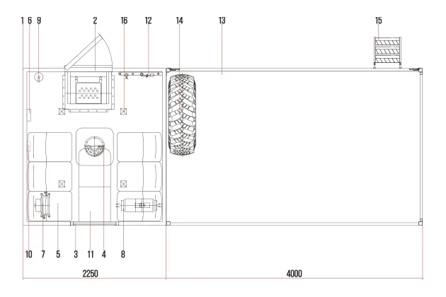
Схема

1. Кузов-фургон

2. Дверь боковая (низкий вход с лестницей, ограничитель, подсветка, глухое окно-стеклопакет)
3. 
Окно стеклопакет с форточкой (слева)
4. 
Люк аварийно-вентиляционный с вентилятором
5. Сиденье с трехточечными ремнями безопасности - 6 шт
6. Переговорное устройство "кабина-фургон"
7. Отопление от системы ДВС
8. Автономный  дизельный отопитель Планар 4Д
9. Огнетушитель ОП-2
10. Аптечка
11. Стол 
12. Шанцевый инструмент (лом, лопата, штыри заземления)
13. Бортовая платформа
14. ДЗК (держатель запасного колеса)
15. Лестница для подъема в борт
16. Фонари освещения (24В)

Услуги

Изготовление вахтовых автобусов под ключ для тяжелых условий

Гарантия от 12 месяцев
Доставка по РФ и СНГ
Изготовление от 5 дней
Выгодный лизинг
Скидка для новых клиентов

Изготовление бортовых автомобилей под ключ для перевозки тяжелых грузов

Доставка по РФ и СНГ
Изготовление от 5 дней
Выгодный лизинг
Скидка для новых клиентов
Гарантия от 12 месяцев

Изготовление изотермических фургонов под ключ с холодильной установкой

Изготовление от 5 дней
Выгодный лизинг
Скидка для новых клиентов
Гарантия от 12 месяцев
Доставка по РФ и СНГ

Изготовление агрегатов ремонта АРОК под ключ для обслуживания качалок

Выгодный лизинг
Скидка для новых клиентов
Гарантия от 12 месяцев
Доставка по РФ и СНГ
Изготовление от 5 дней

Изготовление агрегатов АНРВ под ключ для ремонта водоводов

Скидка для новых клиентов
Гарантия от 12 месяцев
Доставка по РФ и СНГ
Изготовление от 5 дней
Выгодный лизинг
Скидка для новых клиентов

Изготовление ПАРМ под ключ для ремонтных работ

Гарантия от 12 месяцев
Доставка по РФ и СНГ
Изготовление от 5 дней
Выгодный лизинг
Скидка для новых клиентов

Похожая техника

Под заказ
Собственное производство
Грузопассажирские автомобили (ГПА кат. С) Код: 53-232

ГПА Урал-NEXT 4320-6952-72(Е5) с КМУ ИМ-150

Узнайте цену сейчас
Под заказ
Собственное производство
Грузопассажирские автомобили (ГПА кат. С) Код: 53-220

ГПА SHACMAN SX32586V385

Узнайте цену сейчас
Под заказ
Собственное производство
Грузопассажирские автомобили (ГПА кат. С) Код: 53-214

ГПА КамАЗ 43118-3027-50 с крытым грузовым отсеком

Узнайте цену сейчас
Под заказ
Собственное производство
Грузопассажирские автомобили (ГПА кат. С) Код: 53-238

ГПА КамАЗ 43118-3090-50 с КМУ ИМ-50

Узнайте цену сейчас
Под заказ
Собственное производство
Грузопассажирские автомобили (ГПА кат. С) Код: 53-235

ГПА КамАЗ 43118-3027-50 с КМУ ИМ-77

Узнайте цену сейчас
Под заказ
Собственное производство
Грузопассажирские автомобили (ГПА кат. С) Код: 53-234

ГПА Урал 4320-4152-81Е5

Узнайте цену сейчас
Под заказ
Собственное производство
Грузопассажирские автомобили (ГПА кат. С) Код: 53-225

ГПА КамАЗ 43118-3027-50 с КМУ ArmLift S5L8

Узнайте цену сейчас
Под заказ
Собственное производство
Грузопассажирские автомобили (ГПА кат. С) Код: 53-242

ГПА Урал 4320-1912-60Е5 с КМУ ИМ-95 оранжевый кузов

Узнайте цену сейчас
Под заказ
Собственное производство
Грузопассажирские автомобили (ГПА кат. С) Код: 53-222

ГПА Урал 4320-1912-60Е5 с КМУ ИМ-95

Узнайте цену сейчас
Под заказ
Собственное производство
Грузопассажирские автомобили (ГПА кат. С) Код: 53-240

ГПА КамАЗ 43502-66 с КМУ ИМ-15

Узнайте цену сейчас

Обсудить сотрудничество или нужна консультация?

Заполните форму и наш менеджер свяжется с вами в течении 15 минут (в рабочее время)