Кузов-фургон АСВ77721 представляет собой конструкцию из пятислойных «сэндвич-панелей». Снаружи и изнутри фургон обшит стальным оцинкованным листом с полимерным лакокрасочным покрытием («плакированный лист»). Пространство между внешней и внутренней обшивкой фургона заполнено слоем теплоизоляционного материала (пенополистирол), имеющего низкую теплопроводность и низкую горючесть. Для усиления конструкции между утеплителем и обшивкой находятся слой фанеры. Изнутри фургона пол покрыт автомобильным линолеумом на резиновой основе («автолин»).
Фургон в исполнении с боковыми скосами.
Наружная обшивка – плакированный металл оранжевого цвета (RAL 2004) и внутренняя обшивка - плакированный металл белого цвета (RAL 9003).
Обрамление фургона: наружное – алюминиевый профиль, внутреннее – алюминиевый профиль.
ГПА КамАЗ 43118-3027-50 с КМУ ИМ-55
ГПА КамАЗ 43118-3027-50 с КМУ ИМ-55
Код: 53-246Описание
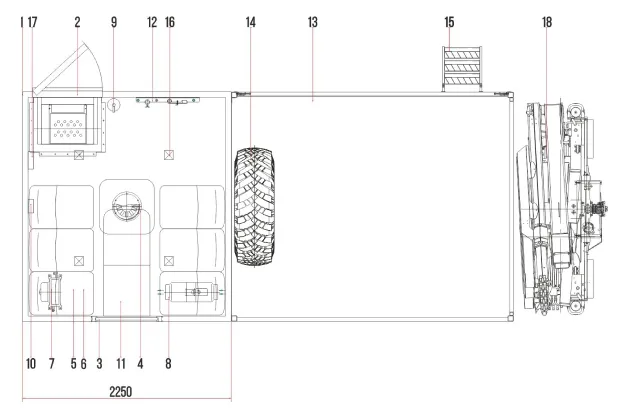
Схема
| 2 | дверь боковая (низкий вход с лестницей, ограничитель, подсветка, глухое окно-стеклопакет) | 1 |
| 3 | Окно стеклопакет с форточкой (слева) | 1 |
| 4 | Люк аварийно-вентиляционный с вентилятором | 1 |
| 5 | Сиденье с трехточечными ремнями безопасности | 6 |
| 6 | Съемные полки | 4 |
| 7 | Отопление от системы ДВС | 1 |
| 8 | Автономный отопитель Планар 4Д | 1 |
| 9 | Огнетушитель ОП-2 | 1 |
| 10 | Аптечка | 1 |
| 11 | Стол | 1 |
| 12 | Шанцевый инструмент (лом, лопата, штыри заземления) | 1 |
| 13 | Бортовая платформа L=3000-4000 мм. (max) | |
| 14 | ДЗК (держатель запасного колеса) | 1 |
| 15 | Лестница для подъема в борт | 1 |
| 16 | Фонари освещения (24В) | 1 |
| 17 | Переговорное устройство | |
| 18 | КМУ ИМ-55 |
Характеристики
Основные
| Грузовой момент (т/м) | 5,12 |
|---|---|
| Максимальная грузоподъёмность (кг) | 2 815 |
| Грузоподъёмность на максимальном вылете (кг) | 730 |
| Максимальный вылет стрелы (м) | 6,78 |
| Количество гидравлических выдвижных секций, шт. | 2 |
| Рабочая температура окружающей среды, °C | - 40 ... +40 |
| Максимальная высота подъема, м | 8,00 |
| Максимальная глубина опускания, м | 5,00 |
| Способ управления | Гидравлический |
| Угол поворота колонны, град. | 410 |
| Место управления | С земли, ДУ |
| Транспортное положение опор | Вверх |
| Тип выдвижных опор | Ручной |
| Стандартная база опор, мм | 3 160 |
| База опор с увеличенным вылетом, мм | 4 234 |
| Масса без гидронасоса, рабочей жидкости, тн | 980 |
| Емкость гидробака, л (полная / max min) | 48 / 40 / 36 |
| Производительность насоса, л/мин | 15 |
| Рабочее давление, МПа | 28,5 |
| Размер по осям шпилек, мм | 533 |
| Монтажная база, мм | 780 |
| Габаритные размеры в транспортном положении, мм | 2 200 х 600 х 1 700 |
Характеристики
Шасси
| Бренд | КАМАЗ |
|---|---|
| Модель | 43118-3027-50 |
| Колесная формула | 6х6 |
| Внешний габаритный радиус поворота, м | 12,3 |
| Максимальная скорость, км/ч | 90 |
Двигатель
| Модель | 740.705-300 |
|---|---|
| Тип | Дизельный с турбонаддувом |
| Количество цилиндров | 8 |
| Рабочий объем, л | 11,76 |
| Степень сжатия | 18,0 |
| Расположение цилиндров | V-образное |
| Максимальный полезный крутящий момент, Нм (кгсм) | 1275 (128) |
| Требуемая частота вращения коленчатого вала для достижения максимального крутящего момента (об/мин) | 1300 |
| Максимальная полезная мощность, кВт (л.с.) | 221 (300) |
| Требуемая частота вращения коленчатого вала для достижения максимальной мощности (об/мин) | 1900 |
Колеса и шины
| Размер обода | 10.00-20 или 12.2-20,9 (в зависимости от комплектации) |
|---|---|
| Тип колес | Дисковые |
| Тип шин | Пневматические, с регулированием давления |
| Размер шин | 425/85R21 или 390/95R20 (в зависимости от комплектации) |
Тормозная система
| Привод | Пневматический |
|---|---|
| Диаметр барабана, мм | 400 |
| Ширина тормозных накладок, мм | 140 |
Коробка передач
| Модель | 154 |
|---|---|
| Тип | Механическая, 10-ступенчатая |
| Управление | Механическое, дистанционное |
| Передаточные числа на передачах | 7,82 – 0,815 |
Раздаточная коробка
| Тип | Механическая, 2-х ступенчатая, с блокировкой межосевого дифференциала |
|---|---|
| Управление | Пневматическое |
Сцепление
| Модель | MFZ 430 |
|---|---|
| Тип | Диафрагменное, однодисковое |
| Привод | Гидравлический с пневмоусилителем |
Кабина
| Тип | Расположенная над двигателем, рестайлинговая |
|---|---|
| Спальное место | Отсутствует |
Электрооборудование
| Аккумуляторы, В/А·ч | 2х12/190 |
|---|---|
| Генератор, В/Вт | 28/3000 |
| Напряжение, B | 24 |
Топливная система
| Вместимость топливного бака, л | 350+210 |
|---|
Главная передача
| Передаточное отношение | 6,53 |
|---|
Прочее
| Комплектация | МКБ, МОБ, ТНВД BOSCH, система нейтрализации ОГ(AdBlue), ДЗК, УВЭОС |
|---|
Доставка
Доставка техники
Доставка производится по всей территории России и в страны Ближнего Зарубежья. Наша компания сотрудничает с ведущими транспортными компаниями, что позволяет предлагать клиентам оптимальные условия доставки.
Мы тщательно следим за процессом погрузки и осуществляем постоянный контроль за сохранностью груза на всем пути следования:
- Для клиента производится фото- и видео-съемка погрузки.
- Вся техника страхуется на период доставки.
Доставка по территории России осуществляется по тарифам транспортных компаний.
Доставка в страны СНГ осуществляется по индивидуальному договору и согласовывается непосредственно с менеджером, ведущим сделку.
Виды доставки:
- Автомобильный транспорт
- Речной транспорт
- Железнодорожный транспорт
В отдаленные регионы России осуществляется комбинированная доставка с учетом особенностей местности.
Сроки:
Сроки доставки оговариваются индивидуально и зависят от удаленности пункта назначения и логистических особенностей региона.
Оплата
Варианты оплаты:
- Безналичный расчёт: удобный и безопасный способ оплаты.
- Рассрочка: возможность разделить оплату на несколько этапов.
- Лизинг: выгодное финансирование с индивидуальным графиком платежей.
Как оформить оплату?
- Свяжитесь с нашим менеджером для уточнения всех деталей.
- Выберите удобный способ оплаты.
- Подтвердите условия и завершите сделку.
Мы всегда готовы обсудить индивидуальные условия и найти подходящий вариант для вашего бизнеса. Свяжитесь с нами, чтобы узнать подробности!
Услуги
Изготовление вахтовых автобусов под ключ для тяжелых условий
Изготовление бортовых автомобилей под ключ для перевозки тяжелых грузов
Изготовление изотермических фургонов под ключ с холодильной установкой
Изготовление агрегатов ремонта АРОК под ключ для обслуживания качалок
Изготовление агрегатов АНРВ под ключ для ремонта водоводов
Обсудить сотрудничество или нужна консультация?
Заполните форму и наш менеджер свяжется с вами в течении 15 минут (в рабочее время)