Кузов-фургон представляет собой конструкцию из пятислойных «сэндвич-панелей». Снаружи и изнутри фургон обшит стальным оцинкованным листом с полимерным лакокрасочным покрытием («плакированный лист»). Пространство между внешней и внутренней обшивкой фургона заполнено слоем теплоизоляционного материала (пенополистирол), имеющего низкую теплопроводность и низкую горючесть. Для усиления конструкции между утеплителем и обшивкой находятся слой фанеры. Изнутри фургона пол покрыт автомобильным линолеумом на резиновой основе («автолин»). Фургон в исполнении с боковыми скосами. Наружная обшивка - плакированный металл оранжевого цвета (RAL 2004) и внутренняя обшивка - плакированный металл белого цвета (RAL 9003).
Обрамление фургона: наружное – алюминиевый профиль, внутреннее – алюминиевый профиль.
ГПА КамАЗ 43118-3027-50 с КМУ Fassi F85B.0.22
ГПА КамАЗ 43118-3027-50 с КМУ Fassi F85B.0.22
Код: 53-229Описание
Схема
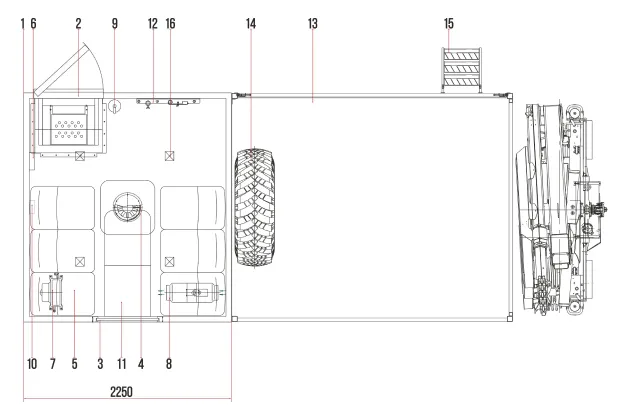
- Кузов-фургон
- Дверь боковая (низкий вход с лестницей, ограничитель, подсветка, глухое окно-стеклопакет)
- Окно стеклопакет с форточкой (слева)
- Люк аварийно-вентиляционный с вентилятором
- Сиденье с трехточечными ремнями безопасности
- Переговорное устройство "кабина-фургон"
- Отопление от системы ДВС
- Автономный отопитель Планар 4Д -1 шт.
- Огнетушитель ОП-2
- Аптечка
- Стол
- Шанцевый инструмент (лом, лопата, штыри заземления)
- Бортовая платформа L=3000-4000 мм. (max)
- ДЗК (держатель запасного колеса)
- Лестница для подъема в борт
- Фонари освещения (24В)
- КМУ Fassi F85B.0.22
Характеристики
Основные
| Грузовой момент (т/м) | 8,56 8,26 7,95 7,85 |
|---|---|
| Максимальная грузоподъёмность (кг) | 4000 3920 3800 3750 |
| Грузоподъёмность на максимальном вылете (кг) | 1535 1045 725 650 |
| Масса установки (кг) | 890 970 1045 1120 |
| Угол поворота колонны, град. | 400 |
| Место управления | С земли с 2х сторон |
Характеристики
Шасси
| Бренд | КАМАЗ |
|---|---|
| Модель | 43118-3027-50 |
| Колесная формула | 6х6 |
| Внешний габаритный радиус поворота, м | 12,3 |
| Максимальная скорость, км/ч | 90 |
Двигатель
| Модель | 740.705-300 |
|---|---|
| Тип | Дизельный с турбонаддувом |
| Количество цилиндров | 8 |
| Рабочий объем, л | 11,76 |
| Степень сжатия | 18,0 |
| Расположение цилиндров | V-образное |
| Максимальный полезный крутящий момент, Нм (кгсм) | 1275 (128) |
| Требуемая частота вращения коленчатого вала для достижения максимального крутящего момента (об/мин) | 1300 |
| Максимальная полезная мощность, кВт (л.с.) | 221 (300) |
| Требуемая частота вращения коленчатого вала для достижения максимальной мощности (об/мин) | 1900 |
Колеса и шины
| Размер обода | 10.00-20 или 12.2-20,9 (в зависимости от комплектации) |
|---|---|
| Тип колес | Дисковые |
| Тип шин | Пневматические, с регулированием давления |
| Размер шин | 425/85R21 или 390/95R20 (в зависимости от комплектации) |
Тормозная система
| Привод | Пневматический |
|---|---|
| Диаметр барабана, мм | 400 |
| Ширина тормозных накладок, мм | 140 |
Коробка передач
| Модель | 154 |
|---|---|
| Тип | Механическая, 10-ступенчатая |
| Управление | Механическое, дистанционное |
| Передаточные числа на передачах | 7,82 – 0,815 |
Раздаточная коробка
| Тип | Механическая, 2-х ступенчатая, с блокировкой межосевого дифференциала |
|---|---|
| Управление | Пневматическое |
Сцепление
| Модель | MFZ 430 |
|---|---|
| Тип | Диафрагменное, однодисковое |
| Привод | Гидравлический с пневмоусилителем |
Кабина
| Тип | Расположенная над двигателем, рестайлинговая |
|---|---|
| Спальное место | Отсутствует |
Электрооборудование
| Аккумуляторы, В/А·ч | 2х12/190 |
|---|---|
| Генератор, В/Вт | 28/3000 |
| Напряжение, B | 24 |
Топливная система
| Вместимость топливного бака, л | 350+210 |
|---|
Главная передача
| Передаточное отношение | 6,53 |
|---|
Прочее
| Комплектация | МКБ, МОБ, ТНВД BOSCH, система нейтрализации ОГ(AdBlue), ДЗК, УВЭОС |
|---|
Доставка
Доставка техники
Доставка производится по всей территории России и в страны Ближнего Зарубежья. Наша компания сотрудничает с ведущими транспортными компаниями, что позволяет предлагать клиентам оптимальные условия доставки.
Мы тщательно следим за процессом погрузки и осуществляем постоянный контроль за сохранностью груза на всем пути следования:
- Для клиента производится фото- и видео-съемка погрузки.
- Вся техника страхуется на период доставки.
Доставка по территории России осуществляется по тарифам транспортных компаний.
Доставка в страны СНГ осуществляется по индивидуальному договору и согласовывается непосредственно с менеджером, ведущим сделку.
Виды доставки:
- Автомобильный транспорт
- Речной транспорт
- Железнодорожный транспорт
В отдаленные регионы России осуществляется комбинированная доставка с учетом особенностей местности.
Сроки:
Сроки доставки оговариваются индивидуально и зависят от удаленности пункта назначения и логистических особенностей региона.
Оплата
Варианты оплаты:
- Безналичный расчёт: удобный и безопасный способ оплаты.
- Рассрочка: возможность разделить оплату на несколько этапов.
- Лизинг: выгодное финансирование с индивидуальным графиком платежей.
Как оформить оплату?
- Свяжитесь с нашим менеджером для уточнения всех деталей.
- Выберите удобный способ оплаты.
- Подтвердите условия и завершите сделку.
Мы всегда готовы обсудить индивидуальные условия и найти подходящий вариант для вашего бизнеса. Свяжитесь с нами, чтобы узнать подробности!
Услуги
Изготовление вахтовых автобусов под ключ для тяжелых условий
Изготовление бортовых автомобилей под ключ для перевозки тяжелых грузов
Изготовление изотермических фургонов под ключ с холодильной установкой
Изготовление агрегатов ремонта АРОК под ключ для обслуживания качалок
Изготовление агрегатов АНРВ под ключ для ремонта водоводов
Обсудить сотрудничество или нужна консультация?
Заполните форму и наш менеджер свяжется с вами в течении 15 минут (в рабочее время)